Fred & Maria

Rénovation complète d’une villa

Rixensart – 2023

Photographe: Emmanuel Beldars

Les clients ont acheté cette habitation pour sa localisation idéale en coeur de village et son terrain généreux.
Leur demande comporte 3 axes ;
repenser les fonctions actuelles (organisation, vues, lumière, relations entre les pièces, …)
prévoir une extension pour répondre aux besoins du programme
revoir les performances énergétiques de l’habitation.

Nous avons répondu à leurs demandes lors d’une étude de faisabilité qui présentait trois pistes possibles pour intégrer leurs demandes.
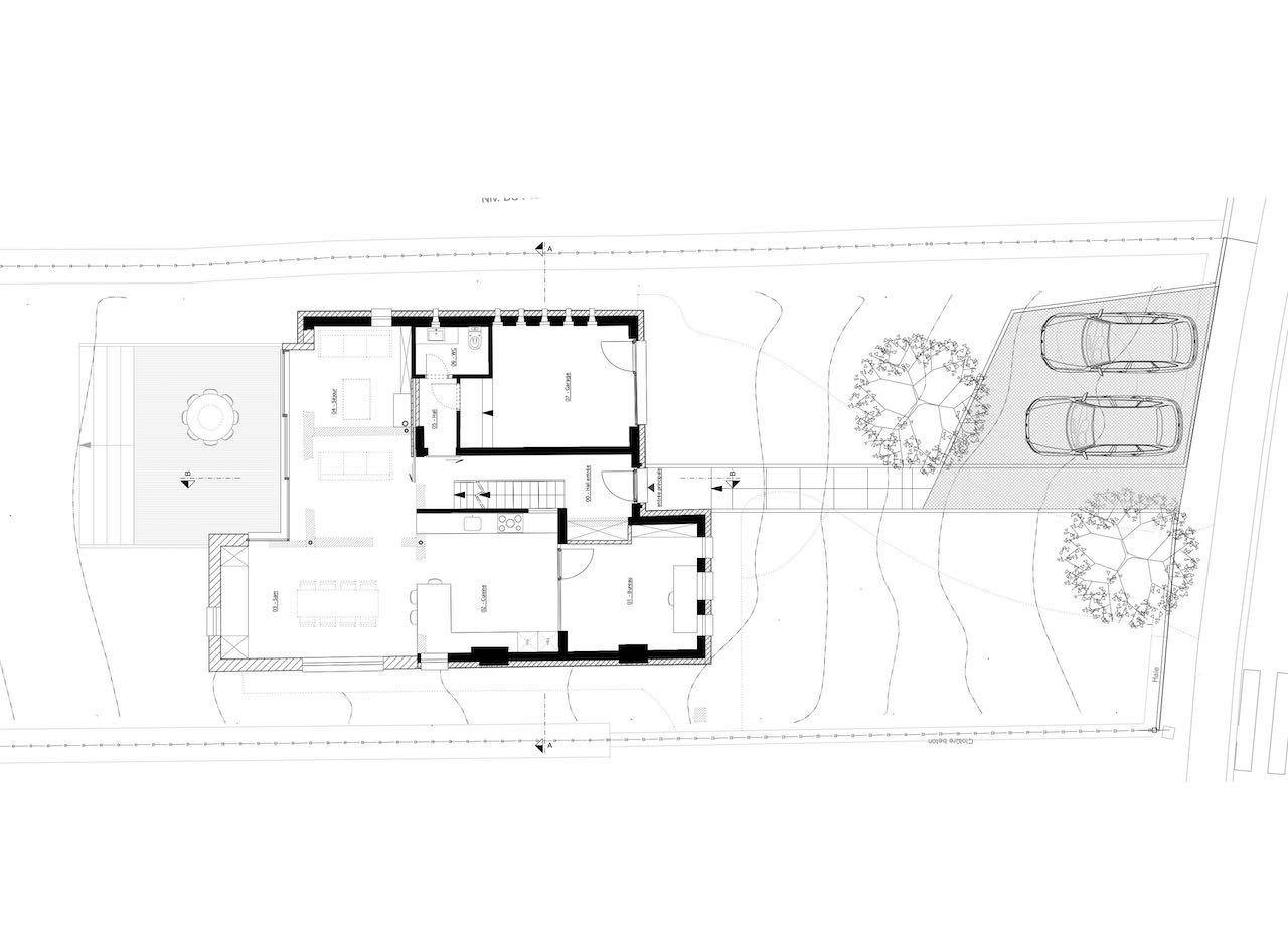
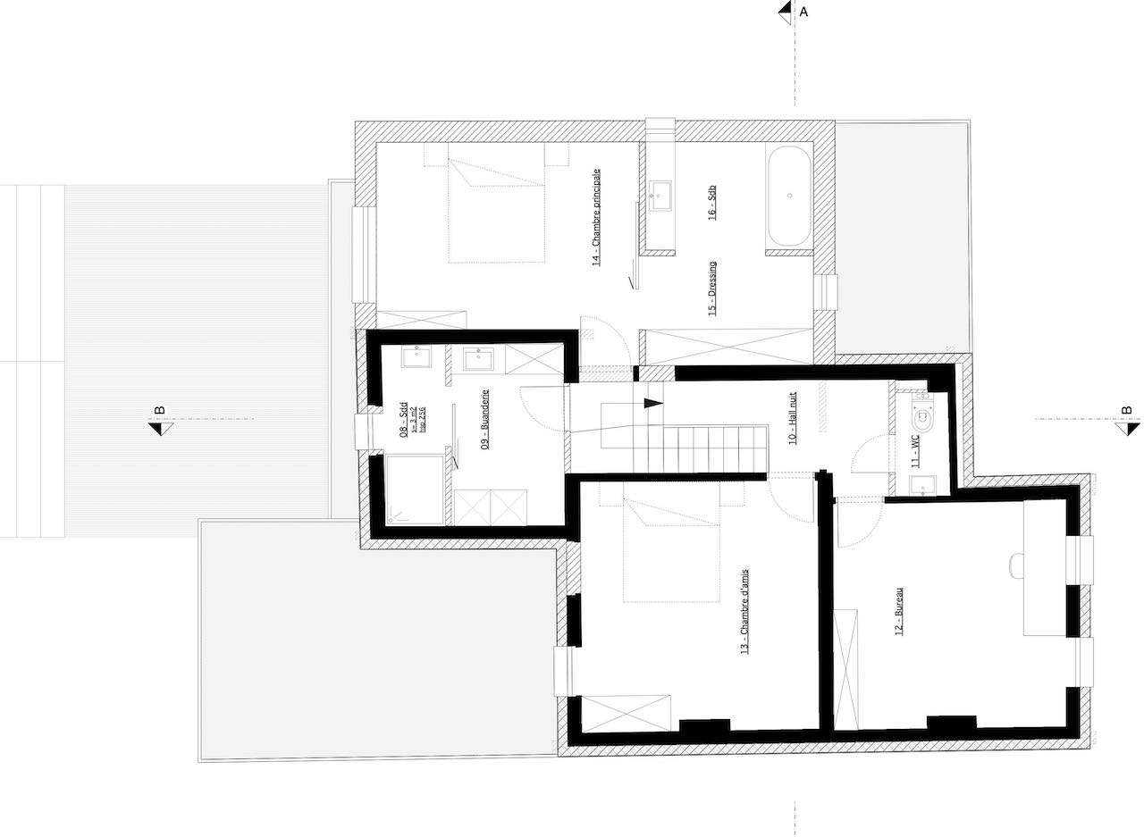
La piste retenue propose de repenser la partie arrière de la maison. La cuisine est déplacée en second jour dans un espace plus grand, une salle à manger est créée dans l’enfilade en lieu et place d’une ancienne véranda, la façade arrière est ouverte sur toute sa largeur pour accueillir un nouveau séjour en relation directe avec le jardin. A l’étage, la partie existante est rénovée pour accueillir une chambre d’amis, un bureau et des sanitaires alors qu’une suite parentale est créée sur le volume du garage existant.
Cette extension est traitée comme un élément de toiture pour donner une cohérence à l’ensemble du projet. Une toiture décorative en pointe est démontée en façade arrière pour simplifier la lecture des volumes, les façades restantes sont recouvertes d’un enduit sur isolant qui unifie les différentes parties de la maison traitées comme un socle à ce grand ensemble de toiture.

© Handmade architecture srl

Fred & Maria

Rénovation complète d’une villa

Rixensart – 2023

Photographe: Emmanuel Beldars


Les clients ont acheté cette habitation pour sa localisation idéale en coeur de village et son terrain généreux.
Leur demande comporte 3 axes ;
repenser les fonctions actuelles (organisation, vues, lumière, relations entre les pièces, …)
prévoir une extension pour répondre aux besoins du programme
revoir les performances énergétiques de l’habitation.

Nous avons répondu à leurs demandes lors d’une étude de faisabilité qui présentait trois pistes possibles pour intégrer leurs demandes.
La piste retenue propose de repenser la partie arrière de la maison. La cuisine est déplacée en second jour dans un espace plus grand, une salle à manger est créée dans l’enfilade en lieu et place d’une ancienne véranda, la façade arrière est ouverte sur toute sa largeur pour accueillir un nouveau séjour en relation directe avec le jardin. A l’étage, la partie existante est rénovée pour accueillir une chambre d’amis, un bureau et des sanitaires alors qu’une suite parentale est créée sur le volume du garage existant.
Cette extension est traitée comme un élément de toiture pour donner une cohérence à l’ensemble du projet. Une toiture décorative en pointe est démontée en façade arrière pour simplifier la lecture des volumes, les façades restantes sont recouvertes d’un enduit sur isolant qui unifie les différentes parties de la maison traitées comme un socle à ce grand ensemble de toiture.

© Handmade architecture srl